
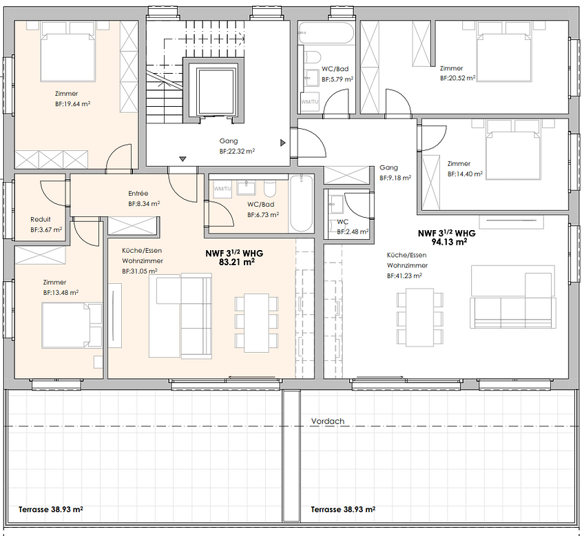
Wohnung 5 (2. OG links)
3.5 Zimmer Wohnung mit Terrasse
Diese schöne 3.5 Zimmer Wohnung (2.5 Zimmer auch möglich) mit 83.21 m2 Wohnfläche und grosser Terrasse mit 38.93 m2 bietet jeglichen Komfort. Die Wohnung verfügt über 2 Zimmer, 1 Badezimmer (je nach Raumaufteilung 2 Badezimmer) und einen einladenden Wohn- und Essbereich. Weiter gehören ein Reduit und ein eigener Kellerraum im UG dazu.

Facts & Figures:
​
-
83.21 m2 Nettowohnfläche
-
38.93 m2 Terrasse
-
6.08 m2 Kellerraum (eigener Raum)
-
Reduit mit Waschmaschine/Tumbler in der Wohnung
-
Hoher Ausbaustandard
-
Ausbauwünsche können noch berücksichtigt werden
-
Materialien können individuell ausgesucht werden
​​
Preis:
​
Wohnungspreis Schlüsselfertig CHF 730'000.00
​
1-2 Einstellhallenplätze à CHF 35'000.00 können dazu gekauft werden.
​
Download Grundrissplan hier
